你的位置: 首页 > 案例展示 > 汇禾记

汇禾记

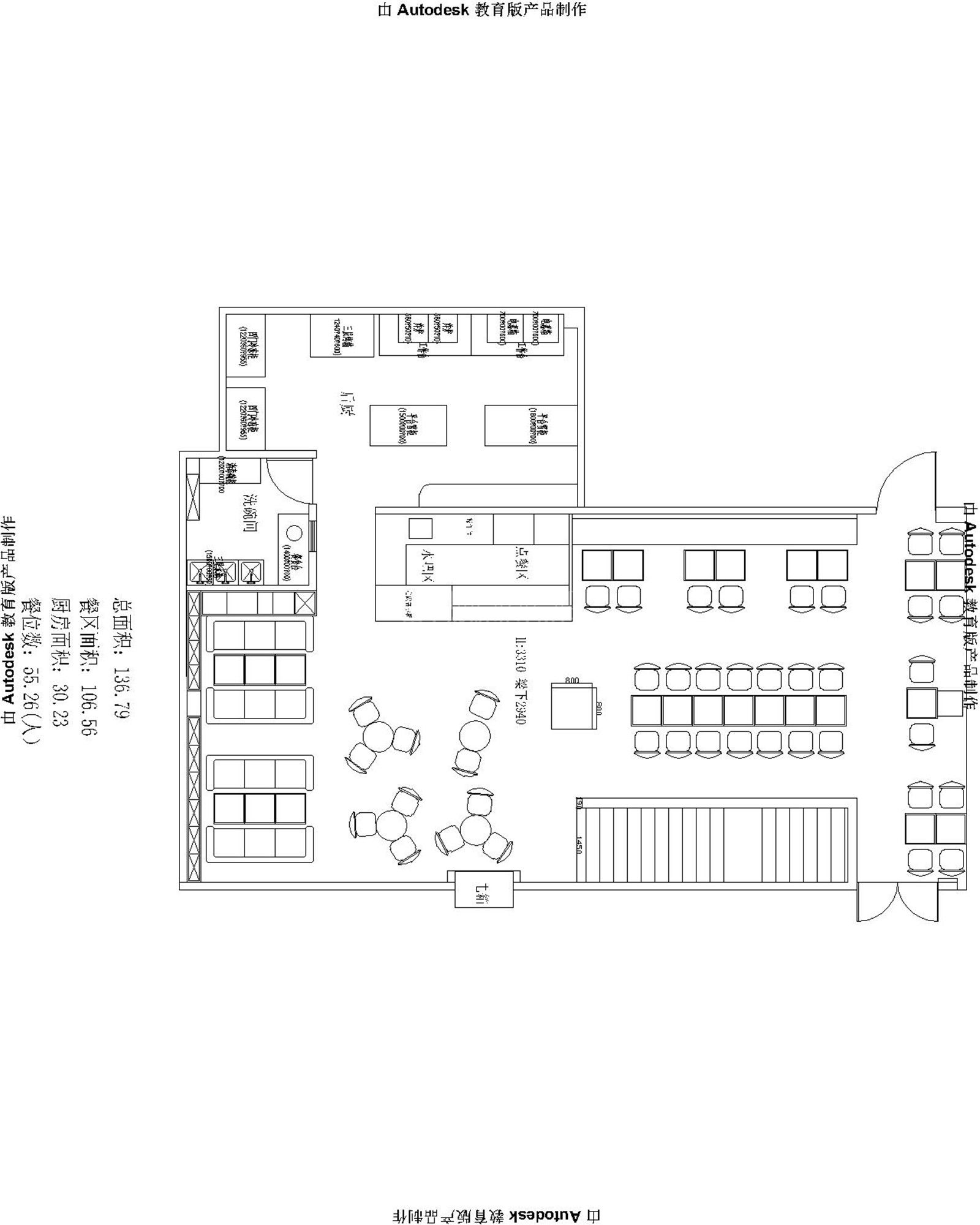
  • 项目面积:136.79㎡
  • 项目地址:北京
  • 项目类别:
    快餐类
  • 项目风格:

ZERO原创作品

—— zero Original works ——

为什么选择零点

—— Why choose zero ——

设计优势 施工优势 运营优势
  • 24年专注只做餐饮行业装修设计,历经N轮餐饮时代变革

  • 设计面积超3000,000㎡,相当于5个故宫的占地面积

  • 客户好评率100%,合作1000+餐饮连锁品牌

  • 掌控餐饮行业潮流,打造餐饮4.0时代紧跟新形势

  • 超10000+设计案例,业务范围覆盖全国

  • 40名专业餐饮设计师,多名超15年经验餐饮设计总监

  • 助力餐饮盈利流水提升200%,开店成功率高连锁品牌

  • 荣获众多餐饮设计奖项,只做有价值的原创设计

  • 价格合理,零点只收取设计费用,施工方面几乎零利润
  • 自己的施工团队,非常熟悉餐饮施工流程
  • 省心、放心,是我们施工团队对您的保证,团队内部沟通协调,您只需审核确认,明显的优势看得见。
  • 项目产生的纠纷通常是预算不准确造成的工期延误、投资损失。预算准确才能保证项目顺利进行。
  • 零点使用的所有材料是针对餐饮的品牌,专业餐饮灯光
  • 设计团队全程跟进,充分保证完成最终效果
  • 预算准确,全面包括品牌、规格、施工做法、量也准确,避免后期产生过多的曾项和纠纷
  • 丰富的施工经验,多道验收节点 ,选择优质环保健康材料。
  • 18年餐饮运营经验,专注餐饮一条龙服务
  • 确立目标,梳理优势资源,制定差异化策略定位和产品卖点,形成核心战略
  • 清晰品牌前进的方向与路径、并规划执行步骤
  • 从诉求为原点,挖掘爆点 包装概念、提炼卖点,打造爆品升级战斗队列
  • 明晰品牌产品风格调性与传播诉求,通过品牌设计进行视觉化的表达,形成品牌符号
  • 抓住品牌快速传播的切入点、引爆点及市场推进,集合线上线下资源,发动立体传播战役
  • 针对性策划大型的公关活动,对品牌资源进行系统整合,快速引爆社会的广泛认知
  • 整合各媒体平台资源,传统渠道与互联网媒体相结合,扩大招商渠道路径,增加品牌传播力
zero零点 快速咨询通道

立即留言 了解装修报价

Leave a message now

急需装修设计

Urgent need for decoration design

4008-6262-00010 - 5869 0696

在线客服咨询
快速报价